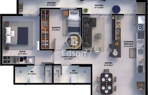
Apartamento 3 Quartos com 1 Suíte e 95m² - Pedra Branca
R$ 916.480,00
Pedra Branca, Palhoça - SC
Sobre o Imóvel | Código: 280
Apartamento Alto Padrão, Pedra Branca, Palhoça.
Descubra o mais novo empreendimento da KOSKI que une luxo, sofisticação e conforto em um único lugar.
O Dubai Residence oferece a você e sua família uma oportunidade única de viver em um ambiente que reflete o estilo e a grandiosidade da cidade dos arranha-céus, Dubai.
Situado no coração da região privilegiada da Pedra Branca, este condomínio promete transformar seus sonhos em realidade.
Venha conosco e explore todas as razões pelas quais o Dubai Residence é a escolha perfeita para viver com toda a grandiosidade que você merece.
Empreendimento Pré-lançamento
•3 dormitórios;
•1 e 2 vagas;
•Área privativa 79.3 a 116m2;
•A partir de R$ 730.548,00;
•Tipologia;
• (1 a 9 andar) Tipo 01 - 3 dorm. (1 suíte) - 1 vaga - Área priv. 104m2;
•(1 a 9 andar) Tipo 02 - 2 dorm. (1 suíte) - 1 vaga - Área priv. 83m2;
•(1 a 9 andar) Tipo 03 - 3 suítes - 1 vaga - Área priv. 116m2;
•(1 a 9 andar) Tipo 04 - 3 dorm. (1 suíte) - 1 vaga - Área priv. 99.9m2;
•(1 a 9 andar) Tipo 05 - 2 dorm. (1 suíte) - 1 vaga - Área priv. 79.3m2;
• (1 a 9 andar) Tipo 06 - 3 dorm. (1 suíte) - 1 vaga - Área priv. 95.4m2;
• (10 a 13 andar) Tipo 01 - 3 dorm. (2 suítes) - 1 vaga - Área priv. 92.9m2;
• (10 a 13 andar) Tipo 02 - 3 dorm. (2 suítes) - 1 vaga - Área priv. 100m2;
•(10 a 13 andar) Tipo 03 - 3 dorm. (2 suítes) - 1 vaga - Área priv. 96m2;
• (10 a 13 andar) Tipo 04 - 3 dorm. (2 suítes) - 1 vaga - Área priv. 99.8m2;
•Empreendimento;
•Áreas sociais mobiliadas decoradas e climatizadas;
•Coworking;
•Elevador;
•Espaço PET e PET Wash;
•Esquadrias;
•Garagens;
•Gás central;
•Hall de entrada;
•Interfone;
•Lavabo na área social;
•Pele de vidro;
•Portão automatizado;
•Revestimento externo;
•Especificações;
•Acabamento em massa corrida;
•Churrasqueira;
•Lavabo;
•Manta acústica entre lajes;
•Parede dupla entre unidades;
•Persianas;
•Piso porcelanato;
•Sacada;
•Vagas individuais;
•Área de lazer;
•Espaços cuidadosamente pensados para proporcionar bem-estar, oferecendo uma estrutura completa para relaxar, reunir a família, amigos e viver a vida com muito mais qualidade;
•Mini Market;
•Academia interno e externo;
•Lounge externo;
•Piscina com deck;
•Playground;
•PUB;
•Salão de festas;
•Salão de jogos;
•Sauna.
(GI)
As informações estão sujeitas a alterações. Consulte o corretor responsável.
Chave do anúncio: AHAicRuQiEkw68YE